全国免费热线
0510-8321 7886
0510-8321 7886
电话:0510-83217886 0510-83217186 0510-68771119 0510-68771110 传真:0510-83206086 地 址:无锡市滨湖区梅园
1、概述
本系列是在原化工部标准HG5-747-78的基础上改进和发展的产品,其中PV型肛用窄V带传动,效率更高,寿命更长;PT型采用同步齿形带传动,其外形紧凑,传动比准确,无滑差又节能。
本系列减速机输出轴只有一种形式,并配套供应夹壳联轴器(HG5-213-65),若有特殊要求,须在订货时说明。
本系列允许正反方向运转,也可用于有防爆要求的场合,除配上防爆电机外,还须配上专用防静电V带。
2、减速机选型表
|
![]() |
|||||||||||||||||||||||||||||||||||||||||||||||||||||||||||||||||||||||||||||||||||||||||||||||||||||||||||
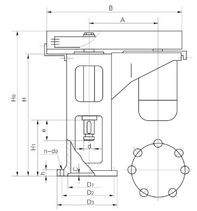
3、P型减速机主要参数及尺寸
|
机型号
|
输出轴直径d
|
许用出轴扭矩
|
中心距A
|
传动比
|
外形及安装尺寸
|
减速机自重
|
||||||||||||
|
PA,PB
PC,PV |
PT
|
B
|
H0
|
H
|
H1
|
e
|
D1
H8 |
D2
|
D3
|
C
|
h
|
n-d0
|
||||||
|
PA,PB
PC,PV |
PT
|
|||||||||||||||||
|
PA3,PV1
PT1,PA4 PV2,PT2 |
30k6
|
58
|
286
|
260
|
4.53
|
790
|
470
|
770
|
645
|
343
|
75
|
240
|
285
|
315
|
5
|
16
|
6-14
|
123
|
|
325
|
308
|
|||||||||||||||||
|
3.63
|
2.96
|
|||||||||||||||||
|
PB4
PV3 PT3 |
40k6
|
135
|
423
|
364
|
4.53
|
985
|
820
|
935
|
780
|
406
|
95
|
260
|
320
|
355
|
6
|
18
|
6-18
|
220
|
|
432
|
3.63
|
|||||||||||||||||
|
440
|
2.96
|
|||||||||||||||||
|
PC3,PV4,PT4,/
PC5,PV5,PT5 |
55m6/
65m/6 |
360/
720 |
654
|
485
|
4.53
|
1400
|
1150
|
1000
|
850
|
450
|
125/
145 |
325
|
400
|
435
|
6
|
22
|
8-18
|
400/
485 |
|
654
|
3.63
|
|||||||||||||||||
|
643
|
2.96
|
|||||||||||||||||
留言咨询














