0510-8321 7886
电话:0510-83217886 0510-83217186 0510-68771119 0510-68771110 传真:0510-83206086 地 址:无锡市滨湖区梅园
(一)、外置式电动滚筒概述
外置式电动滚筒是将电动机装在滚筒体的外面、减速机构装在滚筒体内部的一种新型电动驱动装置。它不但具有原电动滚筒的所有优点,而且克服了电动机散热条件差、容易烧损、使用功率受剜限制的弱点,其功率可达160kW甚至更大。
外置式电动滚筒有l型、II型、III型三种安装型式,可满足不同场合的安装需要,内部减速传动结构目前也有三种:定轴齿轮、摆线针轮、行晕齿轮,每一种都簪过精心设计,使用安全可靠。
配套动力采用Y系列标准电机,如选用YB系列隔爆型电机,则可应用于隔爆要求的场台,因此外置式电动滚筒各种型号均可派生成隔爆型。
本公司生产的外置式电动滚筒配用(GB5014-85)HL型弹性柱销式联轴器:对于大功辜的,为改善起动性能,可采用YO×限矩型液力偶台器代替联轴器;有制动要求的可加装制动嚣,制动器采用Yw乙型电力液力块式制动器,并对应配套使用带有制动轮的同等规格联轴器或偶合器;有单向逆止要求的可加配逆止器。
本公司可为用户设计电机支架和制动器、联轴器、液力偶台器防护罩等,设计系根据用户要求进行。
本公司生产的外置式电机滚筒已广泛应用于港口、矿山、冶盘、电力等各部门的大、中型带式输送机上,受到用户的-致好评。
(二)、外置式电动滚筒类型分类表WI

(三)、外置式电动滚筒规格选用表
(1)WDTN型系列参数表



续表
注:“O”符号表示只能配6极电动机:“△”符号表示只能配4极电动机:“口”符号表示可配6极电动机,也可配4极电动机。若没有特别说明,将优先选用4极电动机
(2)WBTN型系列参数表

注:1表中配B18~B33将优先选用4极电动机,配B39~B45选用6极电动机。
2表中粗线框内型号选用6极电动机或采用双级摆线传动减速。
(3)WXNT型系列参数表
注:“O”符号表示只能配6极电动机;“△”符号表示只能配4极电动机。
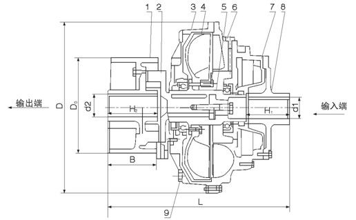
(四)、外置式电动滚筒外形及安装尺寸
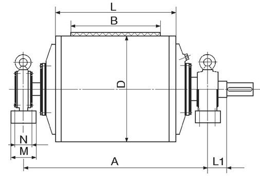
1.滚筒体部分外形及安装尺寸表



注:图中Ll值为输入支座中心到输入轴轴伸肩胛的尺寸,如为WⅡ式直联接轴型外置式电动滚筒时则为输入支座中心到电机法兰端面的参考尺寸。
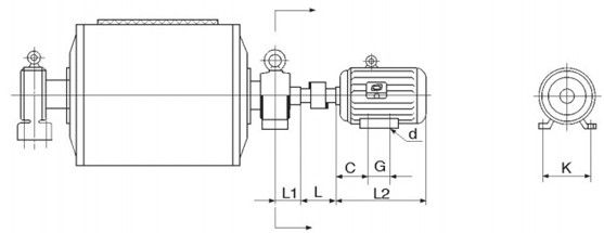
2.WI型驱动部分安装尺寸表


注:1.上表中液力偶合器长度为参考尺寸
2.联轴器及偶合器具体尺寸见附录
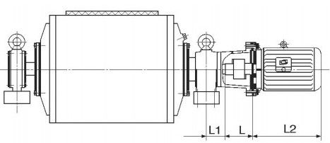
3.WII型驱动部分安装尺寸表

图三:WIIG立式电机直联联轴器型

图四:WII立式电机直联联轴型

注:1.上表中WIIG型驱动部分安装尺寸请参照外置表六中相关数据。
2.电机机座号大于Y200时建议使用B35式电机,上表中字母定义参见外置六。
4.WIII型驱动部分安装尺寸表


(五)、外置式电动滚筒驱动部分电机、柱销联轴器、偶合器、制动器型号对应表


(六)、附录:配套联轴器、偶合器、制动器尺寸参数表
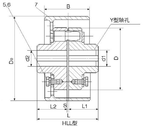
附录一:HL、HLL型弹性术销联轴器


1、4半联轴器;2档扳:3柱销;5螺钉;6垫圈;7制动鼓

附录二:YOX限矩形液力偶合器


注:本系列限矩型液力偶合器均采用Y型长圆柱轴孔、A型键槽型式,尺寸、公差及所有未注尺寸,公差、技术要求均按国家标准制作。
附录三:YOX,型带制动轮式液力偶合器

1制动轮,2连接轴,3外壳,4涡轮,5主轴,6泵轮,7后辅腔,8连接盘,9易熔塞

注:本系列带制动轮式限矩型液力偶合器均采用Y型长圆柱轴孔、A型键槽型式、尺寸、公差及所有未注尺寸,公差、技术要求均按国家标准制作。
附录四:YWZ5型电力液压块式制动器












