全国免费热线
0510-8321 7886
0510-8321 7886
电话:0510-83217886 0510-83217186 0510-68771119 0510-68771110 传真:0510-83206086 地 址:无锡市滨湖区梅园
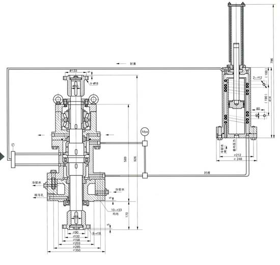
结构:双端面、小弹簧、平衡型、带有泵效应的自行强制循环冷却
压力:0-6.4MPa
温度:-4~300℃
装速:≤700转/分
适用介质:酸、碱、油及高分子悬浮液

用途:A型平衡官是釜用机械密封的辅助装置用于封液闭路循环系统中,对封液进行加压、冷却和辅液,它能保持密封腔内,压力与介质压力之间的平衡,保证机械密封平衡运转。
留言咨询

















