全国免费热线
0510-8321 7886
0510-8321 7886
电话:0510-83217886 0510-83217186 0510-68771119 0510-68771110 传真:0510-83206086 地 址:无锡市滨湖区梅园

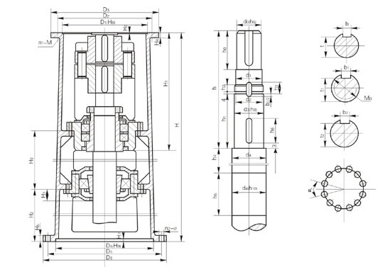
SJ、LSJ型双支点机架主要参数及尺寸
| 机架代号 | H0 | H1 | H3 | H4 | H5 | H6 | H7 | D1 | D2 | D3 | n1-M | D4 | D5 | D6 | a° | n2-φ |
| SJ,LSJ55AB | 450 | 402 | 58 | 22 | 24 | 6 | 6 | 270 |
310 305 |
340 |
6-M10 8-M16 |
325 | 400 | 435 | 30 | 12-φ14 |
| SJ,LSJ65AB | 450 | 487 | 58 | 22 | 24 |
6 5 |
6 | 316 | 360 | 400 |
8-M12 (8-M16) |
350 | 420 | 460 | 30 | 12-φ18 |
| SJ,LSJ70AB | 450 | 487 | 528 | 22 | 24 |
6 5 |
6 |
316(320) 320 |
360 | 400 |
8-M12 8-M16 |
350 | 420 | 460 | 30 | 12-φ18 |
| SJ,LSJ80AB | 450 | 545 | 60 | 25 | 28 |
6 5 |
8 |
345 360 |
390 410 |
430 460 |
8-M16 8-M20 |
380 | 455 | 495 | 30 | 12-φ23 |
| SJ,LSJ90A | 600 | 569 | 69 | 25 | 40 | 7 | 8 | 400 | 450 | 490 |
12-M16 (12-M20) |
430 | 510 | 555 | 30 | 12-φ23 |
| SJ,LSJ100AB | 600 | 685 | 61 | 30 | 40 |
9 5 |
10 |
455(460) 470 |
520 | 580 | 12-M20 | 480 | 560 | 600 | 22.5 | 16-φ23 |
| SJ,LSJ110A | 600 | 685 | 61 | 38 | 40 | 11 | 10 | 520 | 590 | 650 | 12-M20 | 560 | 650 | 700 | 22.5 | 16-φ27 |
| SJ,LSJ120A | 600 | 685 | 61 | 38 | 40 | 11 | 10 | 520 | 590 | 650 | 12-M20 | 560 | 650 | 700 | 22.5 | 16-φ27 |
| SJ,LSJ130AB | 650 | 761 | 85 | 40 | 45 |
11 9 |
10 | 680 | 800 | 880 | 12-M30 | 720 | 810 | 880 | 18 | 20-φ27 |
| SJ,LSJ140A | 650 | 761 | 85 | 40 | 45 |
11 9 |
12 | 680 | 800 | 880 | 12-M30 | 720 | 810 | 880 | 18 | 20-φ27 |
| SJ,LSJ150AB | 650 | 761 | 76 | 50 | 50 |
14 10 |
12 | 820 | 940 | 1020 | 16-M30 | 720 | 810 | 880 | 18 | 16-φ33 |
| SJ,LSJ160AB | 650 | 780 | 81 | 50 | 50 |
14 10 |
12 | 820 | 940 | 1020 | 16-M30 | 840 | 940 | 1020 | 22.5 | 16-φ33 |
| SJ,LSJ180AB | 650 | 910 | 83 | 50 | 50 |
14 10 |
12 | 960 | 1080 | 1160 | 20-M30 | 970 | 1080 | 1160 | 18 | 20-φ33 |
| 型号 | 搅拌轴轴端尺寸 | SJ型 | LSJ型 | ||||||||||||||||||||||||
| h(A/B) | h0 | h1 | h2 | h3 | h4 | h5 | h6 | h7 | d0 | d1 | d2 | M0 | d3(h9) | d4 | b | b2 | b2 | t | t1 | t2 | H | H2 | 重量(kg) | H | H2 | 重量(kg) | |
| SJ,LSJ55AB | 307/302 | 80 | 118 | 15 | 24 | 300 | 120 | 40 | 3 | 55 | 57 | 57 | M60×2 | 60 | 65 | 16 | 8 | 8 | 49 | 56 | 56 | 1070 | 312 | 170 | 1220 | 462 | 186 |
| SJ,LSJ65AB | 373 | 95 | 143 | 18 | 32 | 275 | 135 | 50 | 3 | 65 | 72 | 72 | M75×2 | 72 | 80 | 18 | 10 | 10 | 58 | 59 | 70 | 1140 | 307 | 261 | 1290 | 457 | 277 |
| SJ,LSJ70AB | 373/367 | 95 | 143 | 18 | 32 | 275 | 135 | 50 | 3 | 70 | 72 | 72 | M75×2 | 75 | 80 | 20 | 10 | 10 | 62.5 | 69 | 70 | 1140 | 307 | 261 | 12980 | 457 | 277 |
| SJ,LSJ80AB | 422/385 | 95 | 163 | 18 | 32 | 250 | 139 | 60 | 3 | 80 | 81 | 82 | M85×2 | 85 | 90 | 22 | 10 | 10 | 71 | 79 | 80 | 1230 | 354 | 372 | 1380 | 504 | 388 |
| SJ,LSJ90A | 436 | 115 | 168 | 20 | 36 | 380 | 162 | 60 | 3 | 90 | 91 | 92 | M95×2 | 95 | 110 | 25 | 12 | 12 | 81 | 89 | 90 | 1400 | 363 | 427 | 1550 | 513 | 447 |
| SJ,LSJ100AB | 532/510 | 135 | 178 | 24 | 42 | 360 | 182 | 60 | 3 | 100 | 110 | 112 | M115×2 | 115 | 125 | 28 | 14 | 14 | 90 | 109 | 109.5 | 1510 | 350 | 515 | 1710 | 550 | 542 |
| SJ,LSJ110A | 489 | 145 | 178 | 24 | 42 | 380 | 182 | 60 | 3 | 110 | 111 | 112 | M115×2 | 115 | 125 | 28 | 14 | 14 | 100 | 109 | 109.5 | 1510 | 350 | 621 | 1710 | 550 | 642 |
| SJ,LSJ120A | 489 | 145 | 178 | 24 | 42 | 380 | 182 | 60 | 3 | 120 | 122 | 122 | N125×2 | 115 | 125 | 32 | 14 | 14 | 109 | 119 | 119.5 | 1510 | 350 | 641 | 1710 | 550 | 662 |
| SJ,LSJ130AB | 537/545 | 205 | 208 | 28 | 46 | 370 | 200 | 70 | 3 | 130 | 135 | 137 | M140×2 | 140 | 150 | 32 | 14 | 14 | 119 | 132 | 134.5 | 1610 | 374 | 994 | 1810 | 574 | 1021 |
| SJ,LSJ140A | 537 | 205 | 208 | 28 | 48 | 370 | 200 | 70 |
3 |
130 | 135 | 137 | M140×2 | 140 | 150 | 32 | 14 | 14 | 119 | 132 | 134.5 | 1610 | 374 | 994 | 1810 | 574 | 1021 |
| SJ,LSJ150AB | 根据减速机型号而定 | 220 | 208 | 32 | 52 | 370 | 200 | 70 | 3 | 150 | 155 | 156 | M160×3 | 160 | 170 | 36 | 16 | 16 | 138 | 152 | 154 | 1660 | 410 | 1050 | 1860 | 610 | 1110 |
| SJ,LSJ160AB | 220 | 227 | 32 | 52 | 340 | 215 | 80 | 3 | 160 | 165 | 166 | M170×3 | 170 | 180 | 40 | 16 | 16 | 147 | 182 | 164 | 1660 | 410 | 1060 | 1860 | 610 | 1120 | |
| SJ,LSJ180AB | 290 | 242 | 36 | 58 | 310 | 230 | 90 | 3 | 180 | 185 | 186 | M190×3 | 190 | 200 | 45 | 18 | 18 | 165 | 180 | 182 | 1710 | 402 | 1220 | 1920 | 602 | 1260 | |
注:图示所注“h”仅与本样本BLD、LC-Ⅱ、DC-Ⅱ系列减速机相配,如选用其他型号或其他厂家减速机,“h”需另行计算。增高后的LSJ型机架其下部空间高度可容纳205、206或207型双端面机械密封。
留言咨询


















