全国免费热线
0510-8321 7886
0510-8321 7886
电话:0510-83217886 0510-83217186 0510-68771119 0510-68771110 传真:0510-83206086 地 址:无锡市滨湖区梅园
YTC齿轮减速三相异步电动机产品特点
YTC系列齿轮减速三相异步电动机是为满足驱动低速传动机械的需要而设计的,具有主轴转速低,力矩大的特点,且结构牢固,使用方便,为一般矿山、冶金、制糖、造纸、化工、橡胶等工业及基建工地所常用。本系列电动机可借联轴器或正齿轮与传动机构相连接。电动机采用满压直接起动。
YTC齿轮减速三相异步电动机使用条件及标记示例
使用条件
本系列电动机具有普通型和湿热型。普通型适用于冷却介质温度不高于40 C。湿热型在普通型型号后加“TH”字样,它除与普通型有相同的性能指标和外形安装尺寸外,可用于相对湿度不大于95%(25 C),有凝露、有霉菌的环境。额定电压:380伏(功率在3KW及以下者,为Y接法,其他为 接法) 额定频率:50赫兹 工作制:连续

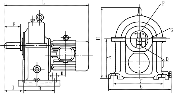
YTC501、YTC502、YTC561、YTC562、YTC671、YTC672、YTC751、YTC752、YTC902、YTC903齿轮减速三相异步电动机外形及安装尺寸

|
型号
|
安装尺寸
|
外形尺寸
|
||||||||||
|
A
|
B
|
C
|
D
|
E
|
F
|
G
|
H
|
K
|
b
|
h
|
L1
|
|
|
YTC501
|
310
|
250
|
22
|
35
|
80
|
10
|
29.8
|
250
|
19
|
376
|
460
|
565
|
|
YTC502
|
310
|
250
|
22
|
35
|
80
|
10
|
29.8
|
250
|
19
|
376
|
460
|
590
|
|
YTC561
|
370
|
300
|
14
|
50
|
110
|
14
|
44.2
|
280
|
19
|
446
|
512
|
678
|
|
YTC562
|
370
|
300
|
14
|
50
|
110
|
14
|
44.2
|
280
|
19
|
446
|
512
|
720
|
|
YTC671
|
420
|
360
|
9
|
60
|
140
|
18
|
52.9
|
335
|
24
|
520
|
605
|
780
|
|
YTC672
|
420
|
360
|
9
|
60
|
140
|
18
|
52.9
|
335
|
24
|
520
|
605
|
830
|
|
YTC751
|
500
|
360
|
15
|
60
|
140
|
18
|
52.9
|
375
|
24
|
600
|
675
|
870
|
|
YTC752
|
500
|
360
|
15
|
60
|
140
|
18
|
52.9
|
375
|
24
|
600
|
675
|
870
|
|
YTC902
|
550
|
360
|
23
|
70
|
140
|
20
|
62.2
|
450
|
24
|
660
|
800
|
915
|
|
YTC903
|
550
|
360
|
23
|
70
|
140
|
20
|
62.2
|
450
|
24
|
660
|
800
|
960
|
留言咨询













