全国免费热线
0510-8321 7886
0510-8321 7886
电话:0510-83217886 0510-83217186 0510-68771119 0510-68771110 传真:0510-83206086 地 址:无锡市滨湖区梅园
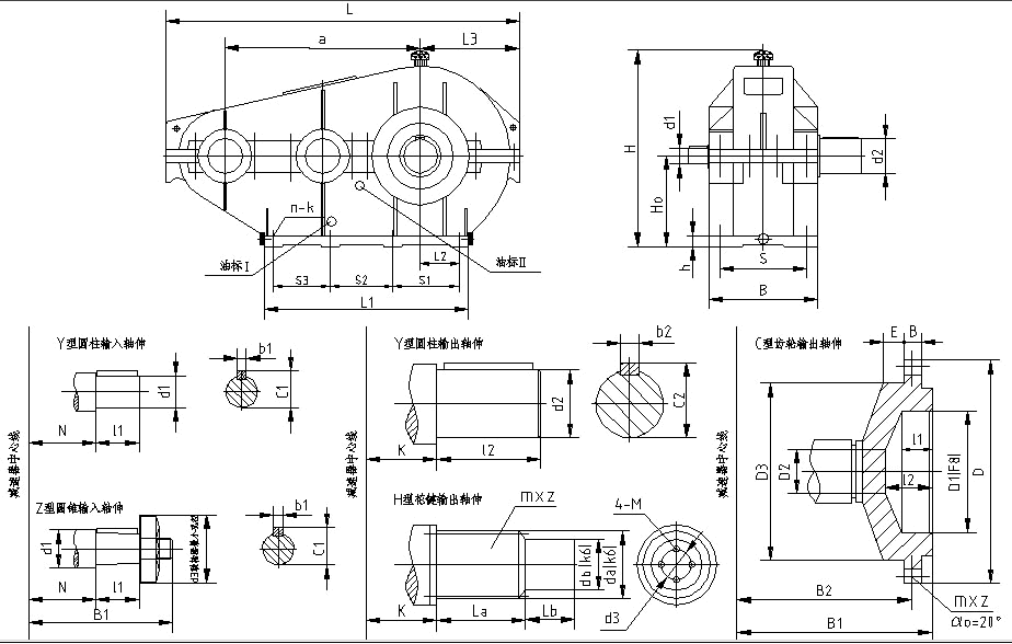
QSH 型减速器外形尺寸,见图18、表20和表21:

图18 QSH 型减速器外形尺寸
表20 QSH 型减速器外形尺寸
|
规
格
|
中心尺寸
|
外 形 尺 寸
|
地 脚 安 装 尺 寸
|
其 它 尺 寸
|
质量
(kg)
|
||||||||||||||
|
a
|
H0
|
L
|
H
|
B
|
S
|
S1
|
S2
|
S3
|
C
|
h
|
k
|
n
|
L1
|
L2
|
L3
|
N
|
K
|
||
|
250
|
250
|
125
|
490
|
263
|
190
|
150
|
220
|
|
|
50
|
20
|
18
|
4
|
310
|
100
|
140
|
100
|
103
|
72
|
|
320
|
320
|
160
|
630
|
338
|
205
|
165
|
265
|
|
|
75
|
25
|
18
|
4
|
385
|
125
|
183
|
120
|
125
|
133
|
|
400
|
400
|
200
|
770
|
411
|
240
|
210
|
330
|
|
|
80
|
25
|
23
|
4
|
460
|
140
|
215
|
140
|
145
|
222
|
|
500
|
500
|
250
|
930
|
486
|
310
|
260
|
230
|
235
|
|
80
|
30
|
23
|
6
|
610
|
185
|
250
|
175
|
180
|
350
|
|
630
|
630
|
315
|
1180
|
606
|
370
|
310
|
170
|
250
|
200
|
95
|
35
|
27
|
8
|
770
|
235
|
330
|
210
|
210
|
730
|
表21 QSH 型减速器外形尺寸
|
规格
|
Y 型圆柱输入轴伸
|
Z 型圆锥输入轴伸
|
Y 型圆柱输出轴伸
|
H 型花键输出轴伸
|
C 型齿轮输出轴伸
|
|
d1 l1 b1 c1
|
d1 d3 l1 B1 b1 c1
|
d2 L2 b2 c2
|
m×Z da La d3 M db Lb
|
m×Z D D1 D2 D3 B1 B2 B E L1 L2
|
|
|
250
|
25 60 8 28
|
28 60 42 170 6 15.4
|
50 82 14 53.5
|
|
|
|
320
|
32 80 10 35
|
35 75 83 220 10 19
|
55 85 18 59
|
3×22 69 35 40 8 60 30
|
|
|
400
|
38 80 10 41
|
40 75 83 256 12 21.3
|
80 125 28 86
|
3×27 84 40 50 8 70 35
|
|
|
500
|
50 110 14 53.5
|
50 90 85 296 16 28
|
100 165 28 93
|
5×20 105 55 60 10 90 45
|
4×56 232 120 40 170 281 250 35 25 50 75
|
|
630
|
65 140 18 69
|
70 125 108 350 18 36.4
|
120 165 32 127
|
5×24 125 70 80 10 110 50
|
6×56 348 170 45 260 322 290 40 32 68 95
|
留言咨询




















